-
Superficie
220 mq
-
Bagni
4
-
Camere
4
Descrizione
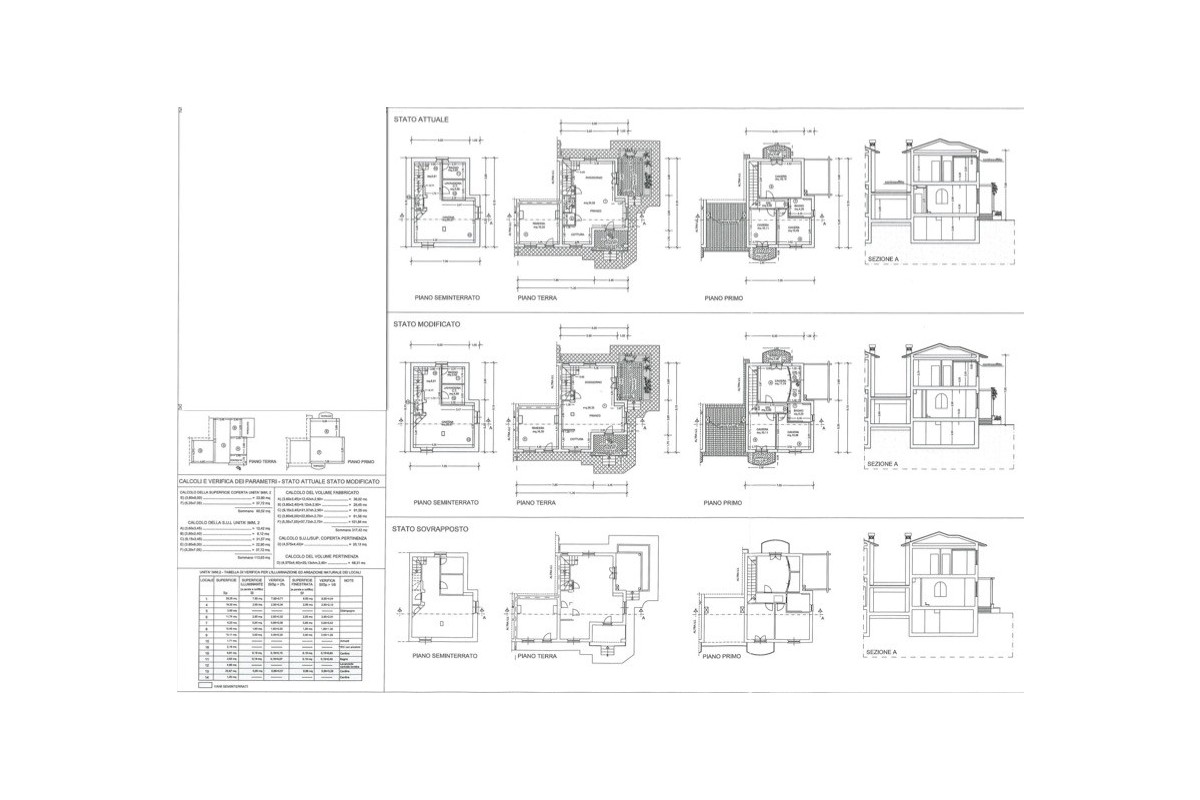
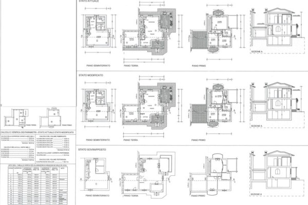
In posizione centralissima, a soli 800 metri da Piazza XXIV Maggio di Tonfano, proponiamo in vendita un’elegante villa di circa 220 mq, inserita in un lotto di 370 mq.
Sebbene catastalmente classificata come bifamiliare, la disposizione degli spazi e la separazione del corpo principale la rendono, di fatto, una casa singola, garantendo privacy e indipendenza.
La proprietà si sviluppa su più livelli e comprende ampia zona giorno con sala e cucina, quattro camere, quattro bagni, taverna, lavanderia, ripostiglio e soffitta.
Dotata di ogni comfort moderno, dispone di riscaldamento a pavimento, pannelli solari per acqua calda, predisposizione per climatizzazione, impianto di allarme, irrigazione automatica e finiture di pregio in marmo e travertino.
Un’abitazione di grande charme, ideale come residenza principale o casa al mare di alto livello, nel cuore di una delle località più ricercate della Versilia.





















